Description
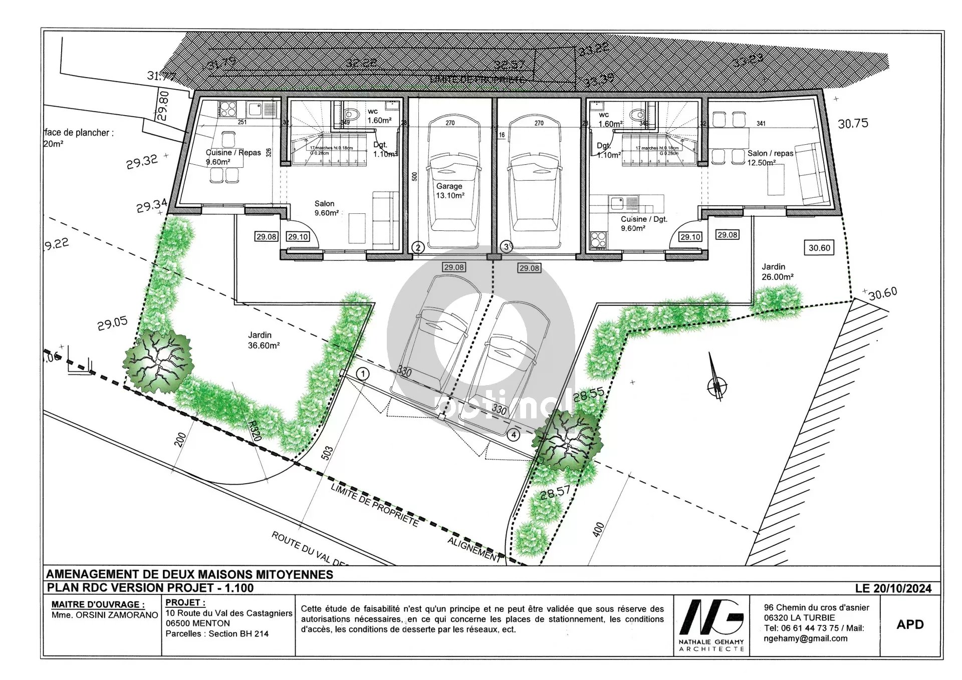
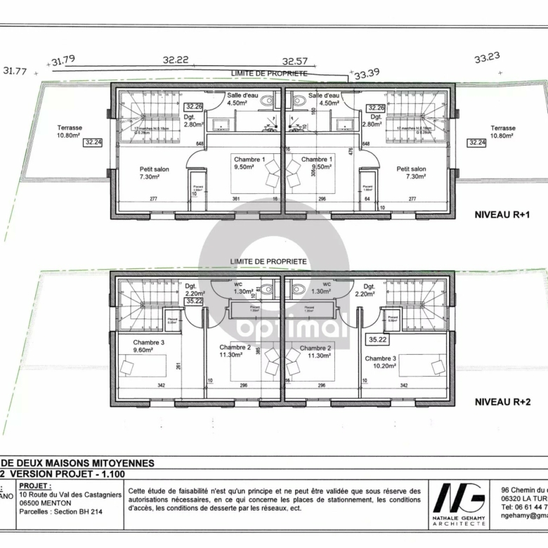
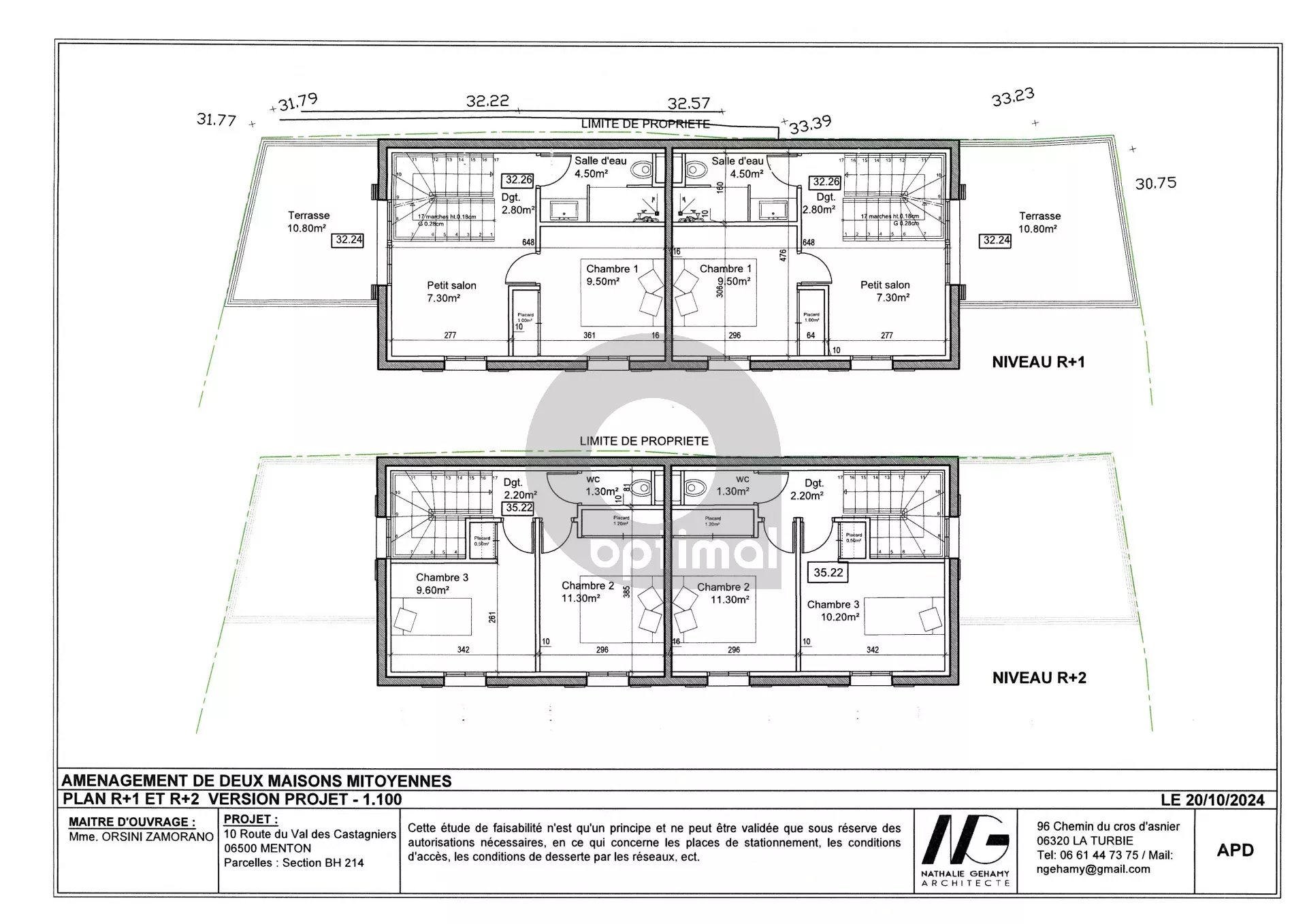
Projet neuf avec une permis accordé et purgé pour la création de deux maisons mitoyennes en copropriété avec rez de chaussée et deux niveaux, jardinets extérieurs, terrasses, garage.
Lot 1 : quatre pièces de 84,47 m². Jardinet de 26 m². Terrasse de 11 m².
Lot 2 : Quatre pièces de 91,76 m². Jardinet de 36 m². Terrasse de 11 m².
Ce projet se situe sur la commune de Menton dans la vallée du Borrigo quartier du val des Castaqgnins avec la proximité des établissements scolaires, un supermarché, des commerces. idéal pour famille en résidence principale.
Détails
Détails aditionnels
-
Charge honoraires agence acheteur
Classe énergétique
Diagnostic de performance énergétique
Géorisques
Les informations sur les risques auxquels ce bien est exposé sont disponibles sur le site Géorisques https://www.georisques.gouv.fr
